REAL ESTATE INFO[不動産情報]
西尾市寺津三丁目3番1、3番2
◆仲介実績◆ 令和3年10月成約 コインランドリーOPEN
◆仲介実績◆ 令和3年10月成約 コインランドリーOPEN
円
| 面積 | 1041.09㎡(314.92坪) |
| 火災保険 | |
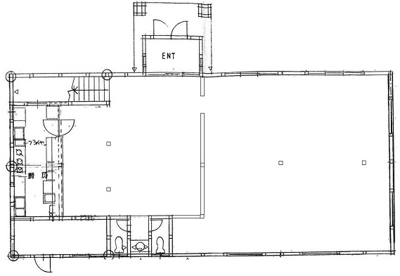
| 現況 | 建物有り・店舗休業中 |
| 地目 | 宅地 |
| 都市計画 | 市街化区域 |
| 用途地域 | 準住居地域 |
| 建ペイ率 | 60% |
| 容積率 | 200% |
| 現況 | 建物有り・店舗休業中 |
| 引渡時期 | 相談 |
| 交通 | 名鉄西尾線「西尾」駅 5㎞ |
| 構造・総戸数 | ※既設建物:木造/瓦棒葺き/2階建て |
| 取引態様 | 一般 |
| 設備 |
| 備考 |








